PROJEKTE
Bestandsaufnahmen
Ausbau und Möblierung Büro (STMK)
Umbau vom Stall zum Büro (STMK)
Ausbau eines Stadl (STMK)
Ausbau Troadkasten (STMK)
Neubau Einfamilienhaus (STMK)
Neubau Einfamilienhaus in traditioneller Holzbauweise (OÖ, Altmünster)
Golfbox (STMK)
PROJEKTE
Mitarbeit | Projektleitung in Architekturbüros
Neubau
Geförderter Wohnbau; mehrere Wohnhausanlagen- Heimat Österreich (NÖ, Klosterneuburg, Pottenbrunn, Strasshof, )
Betreutes Wohnen - Heimat Österreich (NÖ, Hainfeld)
Betreutes Wohnen für psychisch Erkrankte - Caritas (NÖ, Zwettl)
Betreutes Wohnen für Menschen mit Behinderung - Caritas (NÖ, Loosdorf)
Pflegeheim - Caritas (NÖ, Klosterneuburg)
Errichtung einer Lagerhalle (BGLD, Neutal)
Neubau Hotel Werzer (KTN, Pörtschach Wörthersee)
Neubau Autohaus Gady Liebenau BMW + MINI (STMK, Graz)
Einfamilienhaus Neubau (D, Dresden)
Bauen im Bestand
Umbau Studentenheim (Wien)
Umbau und Sanierung Ärztezentrum (D, Dresden)
Umbau Schule und Kindergarten (STMK, Aflenz)
Umbau ehemalige Stallungen zu Wohnungen (NÖ, Leobersdorf)
Gewerbebau - Umbau Lager und Büro (WIEN)
Hotel Umbau und Sanierung (KTN, Pörtschach Wörthersee)
PROJEKTE
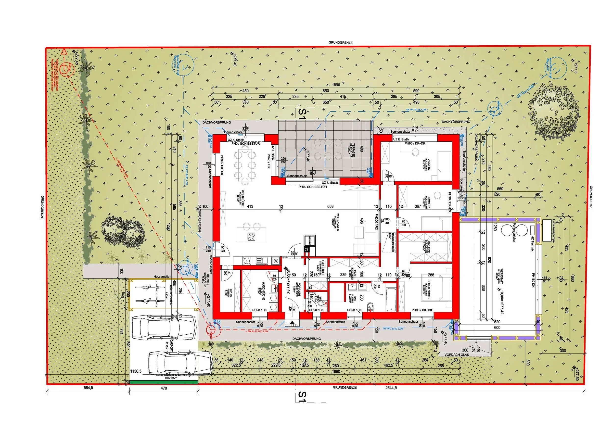
VILLA BESTANDSAUFNAHME
Bauplans und Grundrisse eines Hauses, inklusive Schnitt, Erdgeschoss- und Innenraumplan, im Architekturstil.
PROJEKT ENTWICKLUNG
SHOP GESTALTUNG
BÜRO INNENGESTALTUNG
WOHNHAUS STADL
BAUEN IM BESTAND - WOHNHAUS STADL
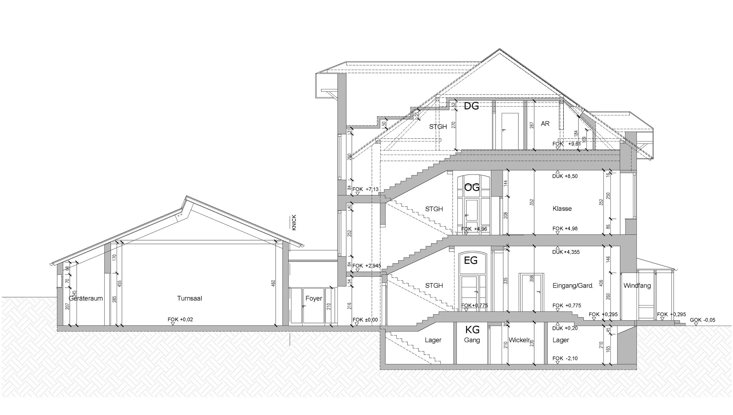
Architektonische Bauzeichnung eines Hauses mit Grundriss, Schnitten und Höhenangaben in verschiedenen Farben, inklusive Treppen, Türen und Fenstern.
WOHNHAUSANLAGE 30 WHG
GUTSHOF UMBAU
Bauplan eines mehrstöckigen Gebäudes mit Grundrissen der Wohnungen, Maßangaben, technischen Details und Symbolen für Strom, Wasser und Abwasser.
Ein technischer Bauplan eines Mehrgeschossigen Gebäudes, zeigt Grundrisse und Höhenangaben, mit verschiedenen Räumen und Treppen.
BESTANDSANALYSE
BESTANDSAUFNAHME
KINDERZIMMER INNENGESTALTUNG
EINFAMILIENHAUS
Architektonischer Entwurf eines Hauses mit grauer Fassade, dunklen Fenstern, einem Dach aus Ziegeln und einem Anbau aus Holz mit einem Baum daneben.
STUDIEN / VISUALISIERUNGEN
DACHBODENAUSBAU - STUDIE
Ein heller Dachboden mit großen Fenstern, Holzbalken und einem Kamin, eingerichteter Wohnzimmerbereich mit Sofa, Holzstapel und dekorativen Zweigen
Ein helles, modernes Schlafzimmer im Dachgeschoss mit Holzrohrbalken, einem Bett am rechten Rand, einer kleinen Sitzecke mit einem Korbstuhl, einem Stehlampe und einer Pflanze, sowie eine offene Dusche im Hintergrund.
Moderner, heller Dachboden mit sichtbaren Holzbalken, weißen Wänden und viel natürlichem Licht durch große Dachfenster. Ein Raum mit minimalistischem Dekor, einem Sofa, Pflanzen und dekorativen Objekten.
Modernes, helles Wohnzimmer mit weißen Wänden, Holzdielenboden, Kamin im Zentrum, große Fenster mit Tageslicht, Sofa, Standleuchte, Dekorationskörbe, eine Holzregal mit Kaminholz, dekorative Gegenstände auf den Regalen und eine laufende Lampe.
AUSBAU STADL - STUDIE
Ein modernes Haus mit Holz und weißer Fassade, große Glas-Schiebetüren und einen kleinen Balkon mit Bänken vor. Ein kleiner Baum ist im Vordergrund sichtbar.
Frontansicht eines modernen Hauses mit weißer Fassade und Holzelementen, große Glastüren und Fenster, kleine Bäume im Vorgarten, sonniger Tag
Ein Haus mit einer Kombination aus dunklem Holz und weißen Wänden, ein Eingangsbereich mit Holztür, kleine Fenster und eine gepflasterte sowie hölzerne Terrasse.
Modernes Haus mit weißer Außenfassade, Holzverkleidung und Terrassentisch im Garten, umgeben von Blumen und grünem Rasen.
RENOVIERUNG GUTSHOF -STUDIE
Ein Haus mit weißer Fassade, braunen Fensterläden und einer roten Ziegeldach, umgeben von einem gepflegten Garten mit grünem Rasen und kleinen Bäumen, sowie einem gepflasterten Hof und einem gemauerten Balkon auf der rechten Seite
Ein traditionelles bayerisches Haus mit weißer Fassade, roten Ziegel-Dach und Holzfensterläden. Im Innenhof ist ein gepflasterter Bereich mit kleinen Pflanzenrillen, ein Baum und eine Holzlaube zu sehen.
AUSBAU STADL INNEN - STUDIE
Moderne offene Wohnküche mit Holzbalken, einem zentralen Kücheninsel aus Holz, einer Frau, stehend, in der Küche, Tageslicht durch Fenster, graue Couch, schwarze Treppe, minimalistische Dekoration.
Moderne Küche in hellem Loft mit Holz- und schwarzen Akzenten, sichtbaren Holzdeckenbalken, Stufen aus Holz und Bürobereich im Hintergrund.
Moderne offene Küche mit Holzdecke, weißem Wandanstrich, Kücheninsel mit Barhockern, großen Fenstern und Essbereich im Hintergrund.
Nahaufnahme eines Holzblocks mit sichtbaren Jahresringen, vor einem rustikalen Holztisch.
WOHNHAUS - STUDIE
Moderner Holzhaus mit großer Veranda und Garten, umgeben von Bäumen und Blumen
Ein modernes Haus mit Holzverkleidung und großen Fenstern, umgeben von einem Garten mit Büschen und Bäumen bei sonnigem Wetter.
WEITERE STUDIEN
Ein modernes Haus mit Holzwandverkleidung im Obergeschoss und einem Steinfundament, daneben eine alte Steinkirche mit Turm. Außenbereich mit Garten und kleinen Bäumen.
Holzhaus mit großen Fenstern, außen auf einer Terrasse mit Topfpflanze, umgeben von Bäumen und gepflegtem Rasen im Grünen.
Modernes Haus mit Backsteinfassade und großen Fenstern, umgeben von Garten mit Blumen und Bäumen, bei bewölktem Himmel.
Moderne Hausfassade mit offener Terrasse, Blick ins Innere mit Esstisch und moderne Kücheneinrichtung, im Garten zwei Lounge-Sessel und Pflanzen im sonnigen Ambiente.
Ein modernes Haus mit großen Glasfenstern, Holzverkleidung und einer Terrasse mit Sitzmöbeln, umgeben von Grün und Bäumen, bei Sonnenuntergang.